Skip to content
Facebook
Twitter
Youtube
Instagram
Email
Menu
Our timetable
What’s on?
Our Calendar
Children & Families
Adult Learning & Support
Youth Projects
Community Pantry
Community & Social Events
Hosted Activities
Fitness & Wellbeing
Faith Groups
About WSF
Mission and values
People Stories
Our Team
WSF Blog
Join our team
Compliments and Complaints
sign up to newsletter
Hire our facilities
Support us
Donate
About us
Our Objectives
Reach us
Our partners
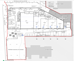
BV Hall Refurbishment
Proposed ground floor