Britannia Village Hall Refurbishment
If you have any comments on the proposed plans or anything connected to the refurbishment of BV Hall please get in touch by emailing carol@wsfroyaldocks.org
February 2026 - Update
The refurbishment of Britannia Village Hall is moving forward and after our consultation events we are finalising the drawings and hope to be in a position to submit our planning application in March 2026.
We also have to get permission from our Landlords for the refurbishment works through a Licence for Alterations and our solicitors have been working on this for the last few months and we are expecting to receive a draft this month.
Our quantity survey has advised that the cost of all the works will be in the region of £3.9m + VAT so it is likely that we will have to phase these and we will look at how we do this once we receive our planning permission.
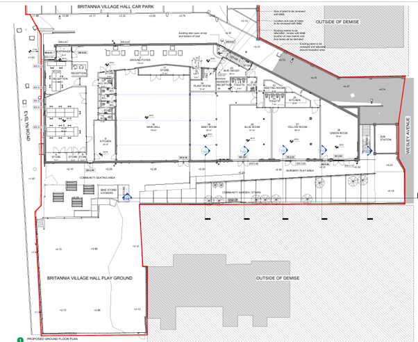
Ground Floor
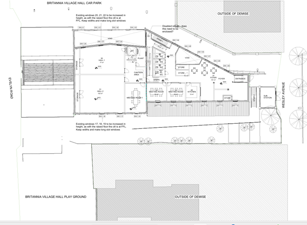
First Floor
We need the money to be able to do these works and we will be getting grants, donations and organising some events to raise this money.
Britannia Village Hall Refurbishment
If you have any comments on the proposed plans or anything connected to the refurbishment of BV Hall please get in touch by emailing carol@wsfroyaldocks.org
February 2026 - Update
The refurbishment of Britannia Village Hall is moving forward and after our consultation events we are finalising the drawings and hope to be in a position to submit our planning application in March 2026.
We also have to get permission from our Landlords for the refurbishment works through a Licence for Alterations and our solicitors have been working on this for the last few months and we are expecting to receive a draft this month.
Our quantity survey has advised that the cost of all the works will be in the region of £3.9m + VAT so it is likely that we will have to phase these and we will look at how we do this once we receive our planning permission.
Ground Floor
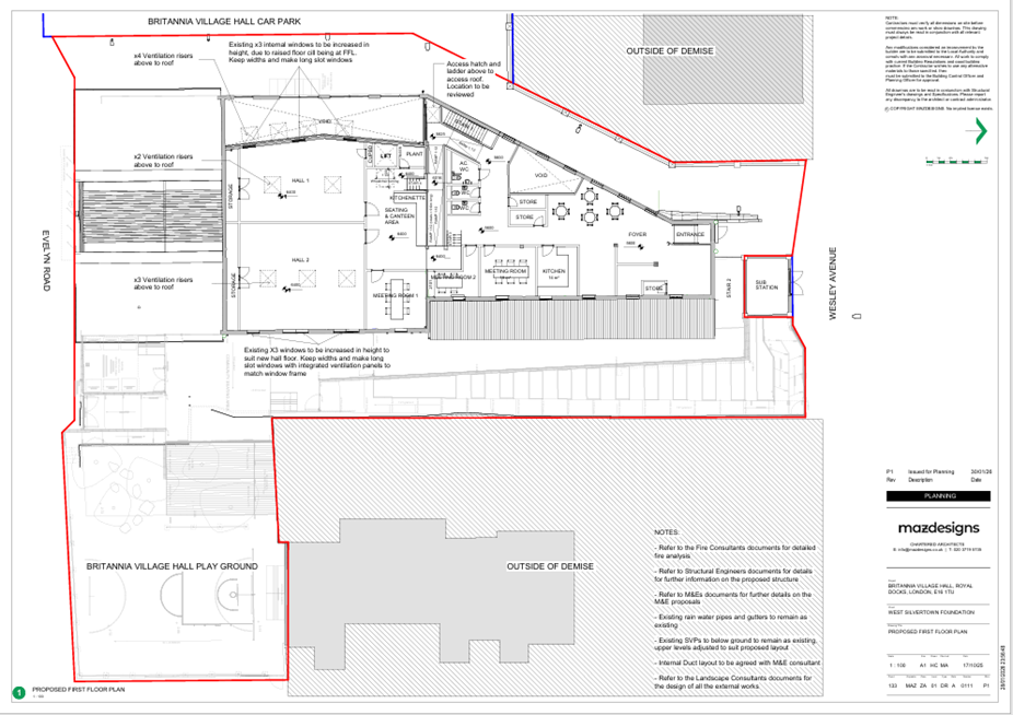
First Floor
We need the money to be able to do these works and we will be getting grants, donations and organising some events to raise this money.

